ローコストの注文住宅なら1HOME ~神奈川・東京・埼玉~

Selling

土地・建売
TOP土地・建売一覧物件情報
戸建て情報

小田原市扇町建売

基本情報

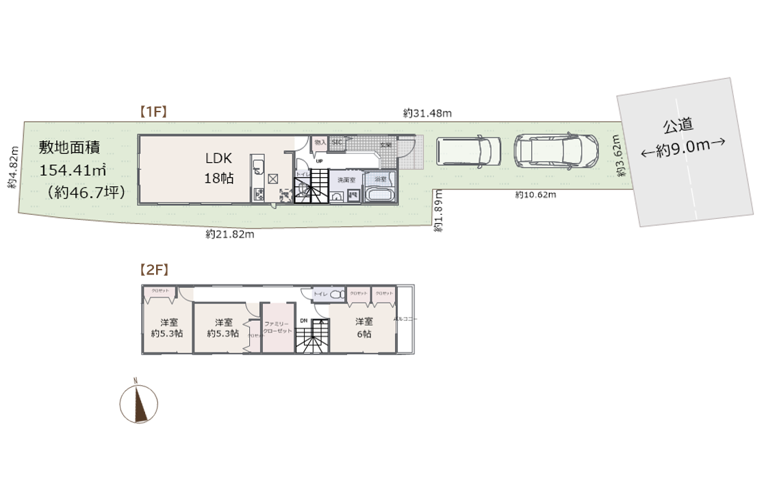
所在地神奈川県小田原市扇町二丁目433番6付近
交通伊豆箱根鉄道大雄山線『井細田』駅徒歩5分
土地面積154.41㎡
建物面積99.36㎡
予定販売価格帯3,980万円

物件概要

間取り3LDK
総戸数1戸
販売戸数1戸
完成予定2026年1月上旬
引渡予定相談
施設・設備公営水道、公共下水、個別プロパン、東京電力、カースペース、外構、その他付帯設備一式
構造木造2階建
建ぺい率①80%②60%
容積率200%
他私道負担なし
道路北東側幅員約9m公道に約3.62m接道
用途地域①近隣商業地域②準住居地域
地目宅地
設計1HOME
施工1HOME
建築確認番号第25UDI1K建00797号 
取引形態売主
最終更新日2025年12月06日
取引有効期限2026年01月31日
お問い合わせはこちら
この物件・土地の
お問い合わせはこちらから
無料カタログダウンロード申込はこちら 見学会ご予約はこちら
もっと詳しく知りたい
1ホームの家づくりについて
もっと詳しく!
01

月々3万円台から
理想の住まいが叶う
秘密

詳しくはこちら
02

高品質設備と
暮らしやすい
間取り設計

詳しくはこちら
03

地域密着だからこそ
実現できる、ずっと安心の
生涯サポート

詳しくはこちら
月々3万円台から理想の住まいが叶う秘密 高品質設備と暮らしやすい間取り設計 地域密着だからこそ実現できる、ずっと安心の生涯サポート
よくあるご質問
HOME 人気プラン カタログDL 電話で相談